REETABLERINGEN AF FYLDPLADSEN ER PÅBEGYNDT
og lidt om planen for udvidelse af Korsør Kart Bane
Her er lidt nye billeder optaget den 17. juli 2010











|
HER ER EN DEL BILLEDER OPTAGET DEN 13. AUGUST 2009.
VI KØRTE UD TIL FYLDPLADSEN AD RESKAVEJ. ADGANGEN TIL OMRÅDET ER SPÆRRET MED 2 CONTAINERE.
VI GIK DERFOR UD I OMRÅDET, MEN DET VAR BLEVET SÅ SENT, SÅ MAN IKKE ARBEJDEDE DERUDE.
VORE MEDLEMMER HAR DOG FORTALT, AT MAN KØRER MED MASKINER DERUDE. BILLEDERNE HER TALER OGSÅ DERES TYDELIGE SPROG OM, AT MAN ER I FULD SVING.
VI VENDER SENERE TILBAGE MED FLERE OPLYSNINGER, EFTERHÅNDEN SOM ARBEJDET SKRIDER FREM.
Vi er kørt ned ad Reskavej mod brandstationen. Vi kunne også have taget vejen tidligere - den løber nemlig rundt og hedder faktisk Reskavej 2 gange.

Luftfoto af området. De blå streger er Reskavejene. Herfra løber en grusvej mod øst. Umiddelbart nord for grusstien ligger Kællingehoved.
Så kører vi ud mod Kællingehoved - det er bevoksningen man ser i baggrunden på fotoet og nord for grusvejen på luftfotoet - her ser man også motorvejsafkørsel 42 og motorvejen. Højbjerg ligger nord for motorvejen og vi har sammen med Halsskov Lokalråd en drøm om en sti over/under motorvejen på dette sted. Den kunne binde stisystemerne sammen og ville være af stor turismemæssig værdi, men i dagligdagen give borgerne i området mulighed for herlige cykle- og spadsereture i deres nærområde. Et sådant stisystem skal også have en trafiksikker forbindelse over Ørnumvej til Høneklint og stierne i Folkets Park. (Det kan du læse mere om i vor forenings stirapport, som du kan finde her på hjemmesiden.)
Man har spærret af med 2 affaldscontainerne. Vi er der først sent på dagen, så der er ingen derude.
På grusvejen derud møder vi en stor traktor med anhænger. Den kommer næppe derudefra.

Her en tegning for reetableringen af fyldpladsen. Det fremgår af tegningen, at der skal etableres et nyt flyveaskedepot ud mod Ørnumvej ved den sydøstlige del af den eksisterende støjvold.
Indenfor på pladsen ud mod Ørnumvej står nogle containere. Vort gæt er, at de skal anvendes til ting, der skal fjernes fra fyldpladsen og som findes under reetableringen.

Luftfoto der viser indgangen til fyldpladsen. Kartbanen ses nederst til højre. De store hvide bunker er nu jævnet ud, hvilket fremgår af de efterfølgende billeder.
Så ligger landskabet - fyldpladsen foran os. Det gider vi ikke vade ud i. Der er ikke en sjæl herude.
Ud mod Ørnumvej står nogle gravkøer. Formentlig er det dem, der anvendes til udjævning af affaldsdyngerne.
Og samme sted en større ladvogn.
Og i begyndelsen var jorden øde og tom, ... (1. Mosebog - Genesis, Kapitel 1,Vers 2).
... eller har der været atomkrig. Hvorfor er der ikke en eneste grøn spire ?
Nej - forklaringen er den enkle, at her er man i gang med at forme det kommende landskab.
Hele pladsen er oversået med larvefodsaftryk fra gravkøerne.
Her kunne man optage en film med en ørkensheik eller måske en spaghettiwestern. Vi mødte ikke ørkenens sønner herude. Der er ellers godt med ulovligt deponeret flyveaske - ikke her, men ved Kartbanens støjvold. Det kan godt i stormvejr illudere som ørkensand.

Der er næppe noget farligt gods på fyldpladsen. Ifølge lokalplan 45´s bestemmelser må der kun deponeres rent affald i området, alligevel er der deponeret flyveaske i forbindelse med en forhøjelse af støjvolden omkring Kartbanen. Det var, da vi havde den store storm og støjskærmen blæste omkuld.
Den Regionale overordnede myndighed har dog pålagt kommunen, at der på ubestemt tid skal etableres et monitoreringsprogram for området. Dette kunne tyde på, at der er forurening i området af en sådan karakter, at løbende kontrol er nødvendig. På det offentlige møde om fyldpladsen, blev det da også nævnt, at området var forurenet i en sådan grad, at den planlagte sø ikke kunne etableres, men der ville dog komme andre mindre vådområder på fyldpladsen.

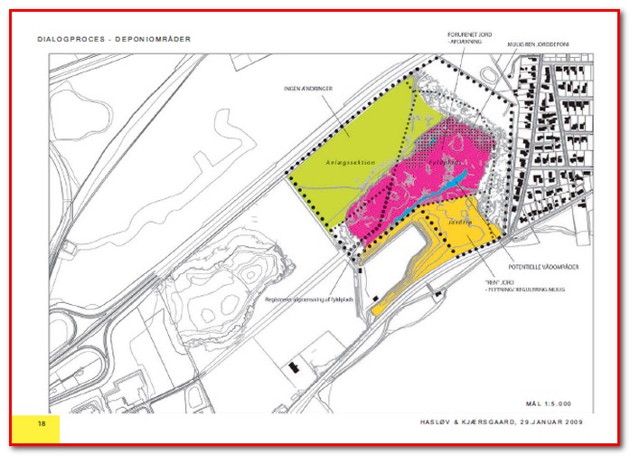
Tegning der viser deponiområderne.
Der ligger en bunke store kampesten - i baggrunden Korsør Kartbanes bygninger. Ørnumvej skimtes til højre i baggrunden.

Hvad gør de bunker med grus herude?
Indfaldsvej til fyldområdet. Det er Rødhøjlunden i baggrunden.
Samme område til venstre.
Samme område til højre.
Indkørslen.
Kommer du ? - Ja jeg kommer, men jeg skal lige have et par billeder af marken. jeg kan se vandtårnet ovre på Halsskov i horisonten. Jeg vil prøve at tage et par billeder med zoomen på.
Tættere på.
Marken lige vest for Kartbanen ved indkørslen til fyldpladsen. Kællingehoved til højre og Halsskov vandtårn ude i horisonten.
Der er lige høstet. Det er da smukt med en sådan gylden mark og vandtårnet på Halsskov.
Her skal ligge den kommende udvidelse af Korsør Kartbane.

Luftfoto der viser indgangen til fyldpladsen og Kartbanen. (med målestok).

Illustrationsplan fra den af kommunen udarbejdede plan for udvidelsen af Korsør Kart Bane mod vest fra Juni 2009.

En af flere støjberegninger som bilag til den politiske behandling af ansøgningen om udvidelsen af Kartbanen.

STØJ = UØNSKET LYD
Støjberegnínger på computer (der er flere) - er ikke virkelighed. Modelberegningerne er udført af professionelle - der dog ikke er uafhængige af ansøgeren (MOTORSPORTENS AKUSTIKLABORATORIUM, Idrættens Hus). Sådanne støjmodeller havner ofte langt fra det, der bliver virkeligheden - der er alt for mange ubekendte og resultatet afhænger af selve computerprogrammet og dettes algoritmer og de beregningsparametre, man fordrer det med.
I det aktuelle tilfælde har man beregnet, hvad der lige netop skal til for overholde kravene til støjbelastningen på Rødhøjvej - det er vanskeligt, at nå ned under grænserne - derfor begynder man at jonglere med nedsat aktivitet og gennemsnitsberegninger af kildetryk ved teoretiske gennemsnit af kartklasser. Der opereres også med etableringen af støjskærme inde på selve anlægget. Beregningerne viser, at man ikke når ned under grænserne, man ligger 3,2 - 3,8 dB over. Det skal nævnes, at en ændring på 6dB svarer til en fordobling af lydtrykket.
Man kender ikke i dag stedets præcise fremtidige topografi og kildetryk - derfor er det hele teori og ikke eksakt viden.
Tekniske og imponerende ser disse tegninger ud - og det er det bedste, man kan i dag. Hvis man efterfølgende foretager målinger over længere tid efter etableringen, ser man ofte meget afvigende resultater. Det er og kan kun være et skøn.

Der kommer virkelig støj, der vil noget fra et sådant anlæg (op til 130-135 dB´s lydtryk er almindelige værdier) - det viser målinger udført under et løb. Det er jo en del af hele sporten og dens atmosfære. Skøn lyd for sportens udøvere og tilskuere, men støj i miljøteknisk forstand. Selv legende børns råben og tumlen på en legeplads i en børnehave, betragtes i juridisk forstand som støj, hvis naboer klager.
Støjen fra anlægget i dag har vor forening ikke modtaget klager over. Selv med en nylig tilladelse til udvidet kørsel - som vor forening ingen indvendinger havde til - , men vi kan høre, når der køres på banen - især ved kraftig vestenvind. Dog er naboernes motordrevne haveredskaber og ens egne faktisk en større støjbelastning.
Det er en herlig sportsgren - også for unge - så vi har fuld forståelse for deres ønsker til en baneudvidelse, men det konflikter med FC Storebælts ønsker og Korsør Minibys (som dog vil acceptere en anden placering af Minibyen).
Vor bekymring går på, at en udvidelse vil konflikte med, at fyldpladsen skal etableres som rekreativt naturområde. Støj og rekreativt område hører ikke sammen. Hertil kommer, at støjvoldene vil ændre den visuelle oplevelse af området.
Der kan foruden støjproblemer også være røgproblemer.
Der er selvfølgelig også en ikke uvæsentlig øgning af støjen i Røhdhøjvejskvarteret, at tage hensyn til.
Ved etableringen af Kartbanen i sin tid var vor forening først imod, men så blev formanden væltet på en generalforsamling. Der var nemlig mange i vort område, der gerne så den etableret, så man kunne køre på den.
Støjen føres med vinden fra vest mod Rødhøjvejskvarteret og "falder ned her". Bemærk den blå stjerne på Rødhøjvej - det er et målereferencepunkt. Man har bare glemt, at der nu er bygget huse langs hele Rødhøjrenden. Der er kun et par hundrede meters afstand mellem Kartbane og boliger.
Derfor bygger man støjvolden omkring den eksisterende kartbane højere mod vest med et udsigtspunkt på toppen.
Kommer der en udvidelse af banen, skal denne omgives af en støjvold i omkring 10 meters højde. Der skal endvidere gives dispensation fra 300 meters strandbeskyttelseslinien og hele baneudvidelsen skal VVM-redegøres. Det er anslået, at anlægsudgifterne står kommunen i over 8 millioner kroner, hvortil kommer merværdiafgift på 25%.
Det skal - hvis det vedtages politisk - på anlægsbudgettet. Det vedtages formentlig - ellers havde man næppe ladet Vej- og Park arbejde med projektet i månedsvis, men der er utroligt mange ønsker til anlægsbudgettet - så vi tvivler, med den stramme økonomi kommunen har.
Vi har i øvrigt undret os over, at Kartbaneudvidelsen overhovedet ikke blev nævnt fra kommunens side på det offentlige møde om reetableringen af fyldpladsen den 27. maj 2009. Du kan læse vort referat med billeder fra dette møde under A K T U E L T.

(Munchs SKRIGET)

Luftfoto der giver overblik over hele området.

Illustrationsplan fra den gældende lokalplan 45.
Her har vi den gældende plantegning for lokalplan 45. Bemærk søen - ved indkørslen til fyldpladsen. Her er også et vandløb - så en sø kan etableres i området, hvis det ikke var for forureningen i området. Lokalplan 45´s bestemmelser er det juridiske plangrundlag.
Stiforløbene - hovedstierne på planen ser vi nødig ændret. Især den trafiksikre krydsning over til Høneklint. Der er 4 planlagte hovedstier i lokalplan 45, der munder ud i Ørnumvej fra området. Den østligste er etableret. Bemærk også - at området dengang blev planlagt til boldbaner vest for Kartbanen.
Vi har aldrig været denne vej før og vidste ikke, at man kunne køre til Kællingehoved. Vi troede faktisk, at indkørslen til fyldpladsen var fra Ørnumvej umiddelbart øst for Kartbanen, der er ligesom spor af, at man har kørt her..
Så går det hjemad ! Ja, ja - nu kommer jeg.
Du kan læse vort referat om det offentlige møde om fyldpladsen under aktuelt.
Vi bringer mere senere. Reetableringen skulle påbegyndes senest den 16. juli 2009 efter et påbud til kommunen. Ifølge en pressemeddelelse skulle dette være sket.
En anden interessant oplysning er, at Regionens Miljøcenter i Roskilde har pålagt kommunen, at der på ubestemt tid fremover skal gennemføres et monitoreringsprogram til en udgift af 200.000 kr. årligt. Hvorfor mon det ?

AGENDA-21 BORGER FORUMS NATUR- OG MILJØGRUPPE I KORSØR

Reportagen er udført af Inge-Lis og Poul

Har du en kommentar til os så klik her og skriv løs - vi vil gerne høre din mening og dine kommentarer. Vi vil også meget gerne bringe dit debatindlæg her på hjemmesiden.
Bare klik her på: F E E D B A C K
INDKOMNE KOMMENTARER:
****************************************************
From: Susanne Mortensen To: Poul Otto Seidel Sent: Friday, September 04, 2009 9:10 AM Subject: SV: Fylldpladsen Hej Poul
Tak for din mail.
Jeg kan desværre ikke i øjeblikket afse tid til at kontrollere jeres hjemmeside for faktuelle fejl.
Fra: Poul Otto Seidel [mailto:poseidel@dbmail.dk] Til Susanne Mortensen
Hej Susanne !
Kunne jeg få dig til at kigge på vor hjemmeside og vort indlæg omkring fyldpladsen.
Jeg så du havde fået sat et lille indlæg i Sjællandske - tror jeg det var - vi har desværre smidt avisen ud.
Derfor vil jeg gerne bede dig kontrollere om de faktuelle oplysninger er korrekte og du er selvfølgelig velkommen til en kommentar - primært om reetableringen af fyldpladsen og de jordarbejder som nu pågår.
Med venlig hilsen og på forhånd tak for hjælpen.
Poul Otto Seidel formand i Grundejerforeningen Tårnborg & Lokalråd |
Siden oprettet 13. august 2009.
14 august 2009 - Afstand indsat - Lidt pjattede billedtekster. Ikke særligt sagligt, men billederne er spændende nok - fra et område i Korsør - en fyldplads (losseplads er det rette ord), som sikkert ikke mange Tårnborgborgere har besøgt. 15. august er indføjet detailluftfotos og kartbaneudvidelsen. 16. august flere mindre rettelser i teksten. FEEDBACK indsat. Teksttllføjelser omkring støjberegninger og interessekonflikter. Stavekontrolleret. 17. august 2009 - margerner sat til v,h,t,b = 2px, ubenyttede formateringskoder fjernet, attributter for billeder fjernet. 17. august stave- og formuleringsfejl rettet. 19. august 2009 mindre rettelser og tilføjelser i tekstdelen. Specielt om stisystemet. Henvising til mødet den 27. maj 2009 under AKTUELT. (Der kan ikke linkes her uden tekniske problemer i ramme I2, man kan ikke komme tilbage). 4. September 2009 - Mail fra Susanne indsat.