KONFERENCE OM LIVET PÅ LANDET - MØDE I HAVREBJERG LØRDAG DEN 18. APRIL 2009


Grundejerforeningen var med til mødet i Havrebjerg - vi er medlemmer.
Konklusionen efter mødet er denne: Vi skal ha´ "fingeren" ud nu, hvis vi skal sætte vort fingeraftryk på kommuneplanen og stiruteplanen.
Der er masser af penge til projekter, som LAL råder over - flere millioner fra EU og fra kommunen , desværre glemte kommunen, at invitere os med på konferencen i januar i år og samme glemsomhed oplevede vi, da der var konference i Bisserup sidste år om blandt andet: "Skjulte spor" - læs: stiplaner. Kommunen har beklaget over for os, men det kan vi jo ikke rigtig bruge til noget nu.
Kommunens medarbejder Uno Rasmussen.
Kommunens medarbejder Uno - måtte fortælle. at man desværre ikke var kommet så langt med de indsendte stibidrag. Det var noget med 4 medarbejdere, der ikke var der og så videre.
Vi påtalte, at man burde have udsendt vej- og stifortegnelsen til alle, der skulle arbejde med stiplanen - så man kunne undgå, at bruge tid og kræfter på allerede eksisterende stier.
Slagelse kommune er vejmyndighed og fører en sådan fortegnelse.
"Ja, det er rigtigt." - sagde Uno - "det er et offentligt tilgængeligt register".
Grundejerforeningen er bange for, der ikke bliver mange penge til nye stitiltag (stien Noret rundt og genetablering af kirkestien), når man nu vil asfaltere eller befæstige hele banestrækningen fra Slagelse til Næstved og sidebanen til Skælskør over krydsningspunktet i Boeslunde med asfalt - og lave formentlig landets længste sti. Nok er det en gave, men kommunen skal også hoste op med skillinger. Det er selvfølgelig glimrende med stier, men det synspunkt kan med rette gøres gældende, at man nok seriøst burde have overvejet, at etablere en elektrificeret lettere togbane på strækningen. Den ville kunne have aflastet biltrafikken og i sig selv have været en turistattraktion.
Cykelfolket på mødet var mere stemt for, at cykelruter og cykelstier langs landevejene blev udbygget. Sådanne cykelstier ville give cyklisten indtryk. Man kørte gennem landskaber, små byer og så videre - så fik man en visuel cykeltursoplevelse. Vi skal ikke blande os i denne debat - der er givet synspunkter for og imod. Pro og contra.
Anne Justiniano (stammer fra Portugal - deraf navnet) fortæller om de 7 lokale stiråd i forbindelse med Slagelse - Næstved banen. Nogen kalder den en hadegave, fordi den allerede lægger beslag på 10 millioner kroner i Slagelse kommunes budget.
I pausen blev der tid til lidt indbyrdes snak. En repræsentant for cyklisterne fandt ikke denne sti særlig velovervejet. "Hvad skal man med en sådan sti, hvis der ikke er faciliteter undervejs. Noget at se på og opleve og hvis man ikke kan komme tilbage med eksempelvis toget, når man er nået fra Slagelse til Boeslunde - hvad så?". Det gav os lidt at tænke over.
Deltagere på lokalrådskonferencen i Havrebjerg.

Flere deltagere på konferencen - til venstre vor lokale LaL formand - Jørgen Damgaard - Det er LANDUDVKLING SLAGELSE som vi er med i, som Jørgen er formand for - Steen Olsen udvalgsformanden for demokratiudvalget er med i bestyrelsen som Slagelse kommunes repræsentant. Hovedorganisationen hedder Landsforeningen af Landsbysamfund - forkortet til LAL.
Der bliver nedsat nogle udvalg af interesserede, der skal komme med INPUT til beslutningstagerne. Heri vil vi ikke deltage - denne stirute ligger ikke i vort område, så det er ikke vor forenings bord.
Vort mål er stien Noret Rundt og genåbning af kirkestien fra Taarnborg til Hulby og at vi kan cykle fra Ørnumvej over golfbaneområdet og Folkets park til Korsør - disse ønsker og mål har vor forening haft siden 1996 og tidligere.
Endvidere mangler vi 400 meter sti ude ved stranden i Musholmbugten, så vi kan gå hele vejen langs stranden fra Knivkær til Storebæltsbroen, men Halsskov Lokalråd har heldigvis allerede været ude og søgt Skov- og naturstyrelsen. Det er Jørgen Larsen, der er deltager i natur- og miljøgruppen og bestyrelsesmedlem i Halsskov lokalråd, der har taget initiativet, nu hvor der kan søges projektmidler hos Skov- og naturstyrelsen, men Slagelse kommune skal også lige sige ja. Vi har i vor forening gennem flere år haft dette ønske - læs vor stirapport.
Kommunens lokalrådskonsulent Anne Justiniano og Demokratiudvalgsformanden Steen Olsen ved morgenmaden.
Formanden for demokratiudvalget Steen Olsen måtte give os ret i, at udkastet til den nye kommuneplan er uoverskueligt - han efterlyste en "light-udgave", så også politikerne kunne få overblik over, hvad der er af nyt og ændringer i forhold til den eksisterende kommuneplan (læs: kommuneplaner for sammenlægningskommunerne og regionalplanen - der stadig er gældende).
Selve planudkastet er på over 1.000 sider - og så er der et hav af bilag og kort.
"Jeg har i dag intet overblik over det" - sagde Steen Olsen - "Jeg håber, at få læst lidt på det i weekenden. Vi skal politisk godkende udkastet om få dage, så det kan komme ud i 2. høringsfase."
Kommunens mand Uno, havde selv kun fået læst et par afsnit af hele materialet. Steen Olsen skulle i gang med at få læst det hele igennem.
Uno tegnede og fortalte om vejstrukturen og indkomne ønsker til stier i kommunen. Det var alt sammen kendt stof for os, men formentlig ikke for øvrige deltagere.
Kurt Smidt - Pepper os op
Vi fik en "PEPTALK" af en mand fra ALS - deltager i lokalrådsarbejdet i HOVBORG (Kurt Smidt fra DR2) - "I skal sætte overliggeren højt!" - sagde han - han er vild med fodbold. Det har vor forening nu gjort i snart 40 år - tænkte vi. "I skal være synlige!" - fik vi fortalt. Det er nu det, vi forsøger på i vor forening - tænkte vi. Sådan blev vi forsøgt COACHET. (Vi ved ikke hvad det betyder, men tolker det, som at blive skubbet i ryggen).
Han fortalte, at man havde fået tilskud på 850.000 kroner til en lille videofilm om Hovborg - den varede sådan cirka 5-7 minutter. Ja, der er nogen der kan sagtens.
Ja, ja - menneskene lever ikke af ord alene - Vi ville nu hellere have lidt kontant støtte og nogle projektmidler.
Vi var to fra vor forening, der deltog i mødet. Det var Willy og formanden. Vor evaluering af mødet er, at vi hellere vil have debat og dialog end foredrag. Vi er resultatorienterede og ønsker, at løse konkrete opgaver - disse møder giver ikke megen mulighed for, at vi lærer andre at kende og i fællesskab får løst en opgave eller stillet nogle krav.
(referatet og kommentarerne samt billederne står formanden for)
KOBÆK SØ OG FREMTIDENS NATUR I SLAGELSE KOMMUNE - Danmarks Naturfredningsforening, Slagelse

Vor lokale mand Ib Larsen formand for
Danmarks Naturfredningsforening, Slagelse - fortæller om
"FREMTIDENS NATUR I SLAGELSE KOMMUNE" og "COUNT-DOWN 2010 DEKLARATIONEN. Det er biologisk mangfoldighed det handler om og naturgenopretning.
Det er vigtige og alvorlige ting der er i spil.
SVENSTRUPGAARD - NU OGSÅ MED CAFÉMILJØ

De prøver nyt på Svendstrupgård.
GENERALFORSAMLING I BEVARINGSFORENINGEN DEN 16. APRIL 2009 - VI ER MEDLEM

Vi havde 3 fra bestyrelsen med til generalforsamlingen.
Det var Annitta, Inge-Lis og Anja.
De meddelte os andre i bestyrelsen, at foreningen arbejdede med virkelige fornuftige ting og opfordrede os til en personlig indmeldelse. De fik også hilst på formanden og næstformanden Jørgen Larsen, fra natur- og miljøgruppen - Annitta og Inge-Lis kender ham fra gruppen. De kom også hjem med planer om, at få lavet ture med Kurt Rehder, som "fører" for vore medlemmer.
Vor forening er medlem af Bevaringsforeningen.
Omtale af Halsskov lokalråds årsmøde.
Lokalrådet er vor forenings samarbejdspartner mod vest. Vi er også med her.

VINDMØLLER VED SPROGØ - MØDE PÅ GRAND PARK - VI VAR MED
Grundejerforeningen Taarnborg har også deltaget i debatten om vindmøllerne ved Sprogø, som vi intet har, at indvende mod.

Fra mødet om vindmølleparken ved Sprogø - projektet gennemgås. Projektmaterialet var klart og tydeligt.
Det er godt med vedvarende energi. Vindmøllerne herude har en stor signalværdi. Hovedparten af Danmark passerer her - og ser vindmølleparken.
Storebæltsbroen slår en bue - det tænker man ikke lige sådan over, men det betyder, at synsindtrykkene skifter hele tiden, når man passerer den. Den er netop planlagt sådan, for at give en større oplevelse. Vindmølleparken vil kun forstærke denne oplevelse.

Fra mødet om vindmølleparken ved Sprogø - projektet gennemgås.
Der var dog nogen på mødet på Grand Park, der udtrykte bekymring for, hvordan det hele så ud, når møllerne snurrede - det gjorde de nemlig ikke på de visualiseringer, de interesserede deltagere blev præsenteret for.

Interesserede tilhørere - Slagelse borgmester Lis Tribler og Halsskov lokalråd var der. Vi drøftede bevarende lokalplaner med Lis i pausen. Tidligere Formand for vor forening Hans Erik Tiedemann var også mødt op.
Grundejerforeningen var bekymret for, at vi igen skulle have en arbejdscamp herude. Her blev vi beroliget. Der bliver en plads på land, men det bliver ikke meget. Det hele bliver stort set sejlet til - så der er ingen grund til bekymring, sagde chefen.


Chefen for Storebæltsforbindelsen - Sund & Bælt -og hans eksperter. Der blev svaret seriøst og prompte på alle spørgsmål. Der er tale om et rent statsligt projekt, idet Storebæltsforbindelsen er et 100% statsligt ejet selskab.
Der har været bekymring for dyrelivet, men statens eksperter kunne oplyse, at en havmøllepark faktisk viste sig, at fremme fiskebestanden, grundet de lave områder op til møllerne. Fuglelivet havde ikke været berørt af pylonerne og fra andre havvindemølleparker, er der ikke rapporteret om problemer for fuglelivet.
MØDE OM BYGGERIET I DE NEDLAGTE BILFÆRGELEJER PÅ HALSSKOV - EN LOSSEPLADS ? - VI VAR MED
Grundejerforeningen har også samarbejdet med Halsskov Lokalråd om byggeriet i de nedlagte bilfærgelejer på Halsskov. Det er vor forenings repræsentanter i natur- og miljøgruppen, der har stået for det.
Gruppen havde selv indgivet en lang indsigelsesrapport og fik faktisk medhold i stort set samtlige punkter af Vestsjællands Amt, men så blev Amtet nedlagt og alle Amtets indsigelser blev trukket tilbage. Så gav vi op.
Halsskov Lokalråd har kørt en klagesag i Naturklagenævnet, men har ikke fået medhold - nu ligger sagen os bekendt i Ombudsmandsinstitutionen og er under behandling.
Sagens kerne er her højhusbyggeriet på molerne. Der er regler om en sådan bebyggelses højde langs en kyststrækning. Vi har i gruppen forsøgt at rådgive Halsskov Lokalråd så godt vi kunne, men vi tror løbet er kørt.
I dag ligner det hele en losseplads. Grundejerforeningen natur- og miljøgruppe var også repræsenteret ved høringen omkring "byggeriet der aldrig kom i gang".

Kulturhuset var fyldt til bristepunktet og spørgelysten var stor. Man fornemmede tydeligt at mange var vrede. Vi var flere deltagere fra Naturgruppen.
Vi havde 2 spørgsmål til formanden for Plan, erhvervs og udviklings udvalget - tidligere Korsør borgmester Flemming Erichsen:

Tidligere Korsør Borgmester Flemming Erichsen - i dag udvalgsformand for Plan- Erhvervs- og Udviklingsudvalget. Flemming var hårdt trængt af de mange kritiske spørgsmål og luften dirrede af utilfredshed. Lund Gruppens ansvarlige sidder og fornemmer den skeptiske indstilling.
Vi ville gerne vide om, der var aftalt beplantning af området, indtil det sidste bliver bygget. Som det ser ud i dag - og i måske mange år fremover - det, er der efter vor mening ingen, der kan være tjent med.
En repræsentant fra Lund Gruppen kunne give os det svar, at man selvfølgelig vil beplante og gøre området pænt, da der kunne gå op til 10 år eller mere før det sidste bliver bygget.

Der lyttes og spørges og deltagerne kritiserer Lund Gruppen for at levere en dokumentation der ikke er opdateret og svarer til lokalplanernes indhold.
Vi havde et spørgsmål mere til Flemming:
Vi ville gerne have at vide, hvad juristerne havde rådgivet Slagelse kommune til omkring spørgsmålet: at gøre brug af tilbagekøbsklausulen.
Flemming forklarede, at man var blevet rådgivet til, at vente endnu et stykke tid. Årsagen er salgskontrakten, der indeholder bestemmelser om, at en stor del af betalingen for det store areal, kan ske ved at køber drager omsorg for en hel del infrastrukturelle tiltag. Det er denne noget usædvanlige betalingsform, der får juristerne til at bede kommunen vente endnu nogle måneder.
Sagen er på den politiske dagsorden lige netop nu i Slagelse kommune. Vi kender ikke resultatet, men Lund Gruppen har anmodet om en fristforlængelse. Sagen behandles på lukket dagsorden.
Mødet i kulturhuset var ellers noget af et tilløbsstykke (der blev dog skaffet stole til alle).
Formanden for Natur- og miljøudvalget Anders Nielsen lagde ud - han var vred og beskyldte Lund Gruppen for nøl:
- "I lyver, når i siger at husbådene er solgt. Der er ikke solgt en eneste! - Der er intet, der forhindrer Jer i at bygge, jeg er udvalgsformand og jeg ved, at tilladelserne er givet og problemerne med forureningen derude er afklaret."

Der var stor skepsis hos tilhørerne og flere gav udtryk for, at man ikke havde tillid til, at projektet blev ført ud i livet. Byggeriet i landet er gået i stå og vi befinder os i en tilstand af recession der ikke giver mulighed for salg af dyre liebhaverboliger med havudsigt. Det kan have lange udsigter med det byggeri. Lund Gruppen lagde ikke skjul på, at hele byggeriet skulle udføres etapevis og der kunne gå 8 - 10 år - måske helt op til 20 år i værste fald, før det hele var færdigt.

Kommunens planchef Stig Christensen prøver at berolige - Lund Gruppens repræsentanter ser lidt triste til.
Anders er også formand for en beboergruppe ved Granskoven, hvor han selv har et sommerhus. Man kunne høre på ham, at han var træt af, at hele granskoven er blevet ødelagt - det er vi også i natur- og miljøgruppen - prøv, at se det billede af udsigten fra Granskoven, som findes flere steder her på vor hjemmeside.
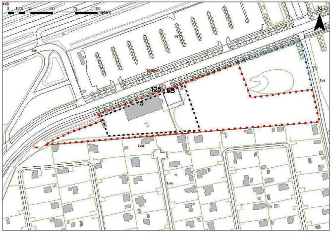
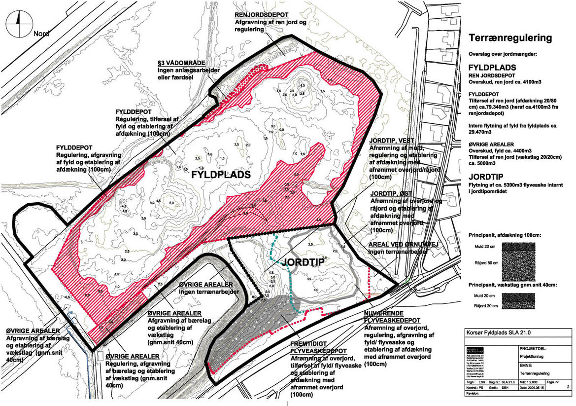
Det fremgår af ovenstående presseomtale, at vi samarbejder om reetableringen af fyldpladsen på Ørnumvej, hvor vi har bedt om et fælles møde med kommunen, idet lokalplan 45 for området udlægger dette til et rekreativt område.
Vi ser meget gerne en stiforbindelse, så der bliver forbindelse fra Højbjergskoven til os herude i Svenstrup og til stisystemet på Golfbanen. Det hele skal være færdigt den 16. juli i år, det har Regionen giver kommunen påbud om. Vi har intet hørt fra kommunen.
Sidste nyt i denne sag er dog, at der afholdes et møde i Korsør kulturhus onsdag den 27. maj 2009 om reetableringen af fyldpladsen.
Så er der lige områdeafgrænsningen, som vi ikke betragter som noget problem. Vi er ved at få skaffet nogle ældre kort. Halsskov lokalråd får kommunalt tilskud i forhold til sit medlemstal og de skal derfor have fastlagt deres fysiske område præcist. For os er Taarnborg lig med det gamle Taarnborg sogn og den gamle Taarnborg kommune.
Vi får desværre ikke tilskud - vi har søgt - og der bor stort set ingen i grænseområdet.
Jeg har lige drøftet det med Claus og vi er enige om, at den sag skal vi nok få på plads. Vi kan sagtens samarbejde om de grønne områder og naturen i vort grænseland.
Grundejerforeningen har ikke i sin trafiksikkerhedsrapport omtalt problemerne med den tunge trafik gennem byen ad den problematiske Tårnborgvej (det er især de 2 sydligst beliggende rundkørsler, der er problemet) og ikke mindst de store lastkøretøjer på Revvej. Vi er ganske enige med Halsskov Lokalråd og har fuld tillid til, at den sag klarer de selv.
Vi har selv oplevet, når vi har været gæster på deres månedlige møder, at folk kommer med et problem og tilbyder deres egen assistance, for at få det løst. Vi håber og beder til, at det også sker herude.
(dette referat står for formandens egen regning - Det var Annitta og formanden, der deltog i møderne på Grand Park og i Kulturhuset - møderne hos Halsskov Lokalråd har Bent og formanden stået for)
BILISTERNE MÅ LIDE FOR STILHEDEN - STØJDÆMPENDE ASFALT PÅ MOTORVEJEN

Så kommer den støjdæmpende asfalt - sikke en larm, da maskinerne kørte forbi forleden nat. Vi troede først det var cirkulationspumpen i vort naturgasfyr i bryggerset, der var brændt sammen. Det må jo gøre ondt, før det kan gøre godt.
Kan i høre forskellen - det kan vi !
L A L - Landsforeningen Af Landsbysamfund - Brev - Vi er med

Vor forening er medlem af ovenstående. Det er foreningen "Landsforeningen af Landbysamfund". Alle der er fyldt 15 år og bosiddende i Slagelse kommune, kan blive medlem af den lokale afdeling.
Det koster ikke noget. Landsforeningens afdeling af LaL - her i vort område - holdt generalforsamling i den forgangne uge.
Vi havde ikke tid til at komme til generalforsamlingen.
Det er ikke en fejl - den hedder faktisk LaL.
TILDELING AF HONORAR FOR VOR FORENINGS INDSAMLING AF MATERIALE OM STIER

Lidt har også ret ! Tak for det.
VOR ORDINÆRE GENERALFORSAMLING SØNDAG DEN 22. MARTS 2009
Her kan du læse dagsordenen og på vor dokumentside finder du bestyrelsens beretning eller du kan læse den ved at klikke her:
Bestyrelsens beretning 2008-2009
Vi afholdt ordinær generalforsamling
søndag den 22. marts 2009
i Tårnborg Forsamlingshus.
Dagsorden ifølge vedtægternes §9.
Alle fik særskilt indkaldelse.